Build Blueprint
34' x 36' Spruce Cabin Architectural Plans
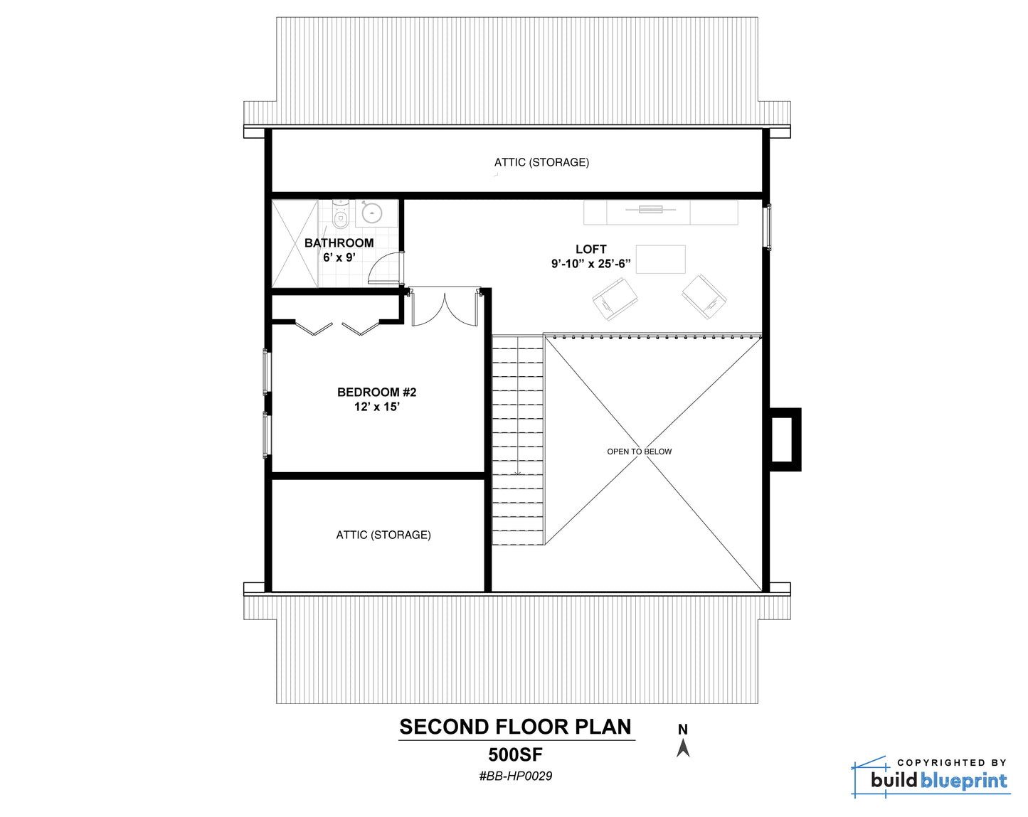
34' x 36' Spruce Cabin Architectural Plans
Couldn't load pickup availability
1650 SF (36'W x 34'L x 30'-9"H) |
2 Bedrooms / 2 Bathroom |
Slab or Crawlspace |
Roof Load: 95 PSF |
Ceiling Height: 8'-0" |
Est. Materials Cost: $60,000* |
Complete architectural plans of an modern style cabin with 2-bedrooms, 2 bathrooms, and a spacious loft! These plans are ready for construction, and suitable to be built on any plot of land. This is the perfect budget modern cabin, complete with a large front and back patios, double height living room, and large windows for natural light. Plans include both concrete slab and concrete footing foundations.
The plans include 19 sheets: Materials List, Floor Plans, Elevations, Foundation Plan, Roof Plan, Electrical Plan, Construction Details, and Door/Window Schedule, fully dimensioned and annotated. The total heated interior is 1,650SF, with 8'-0" high ceiling. Plans are designed per standard North American building codes and IRC (International Building Code)
Plan is available in both Imperial and Metric units.
Plans are copyrighted by Build Blueprint, and intended for personal builds only.
Instant Digital Download
Instant Digital Download
You will receive the download link to the full plan immediately after your purchase. Link never expires so you will always have access to download if needed.
Drawing Scale
Drawing Scale
All of our plans are drawn to standard scale (i.e. 1/4" = 1") as per most building and permit requirements.







Complete Plan Set
All plans include: materials list, floor plan, elevations, sections, foundation and roofing plan, electrical plan, plumbing fixture locations, construction details, door and window schedule, and more.