Build Blueprint
35' x 35' Long Creek Modern Cabin Architectural Plans
35' x 35' Long Creek Modern Cabin Architectural Plans
Couldn't load pickup availability
1650 SF (35'W x 35'L x 26'-10"H) |
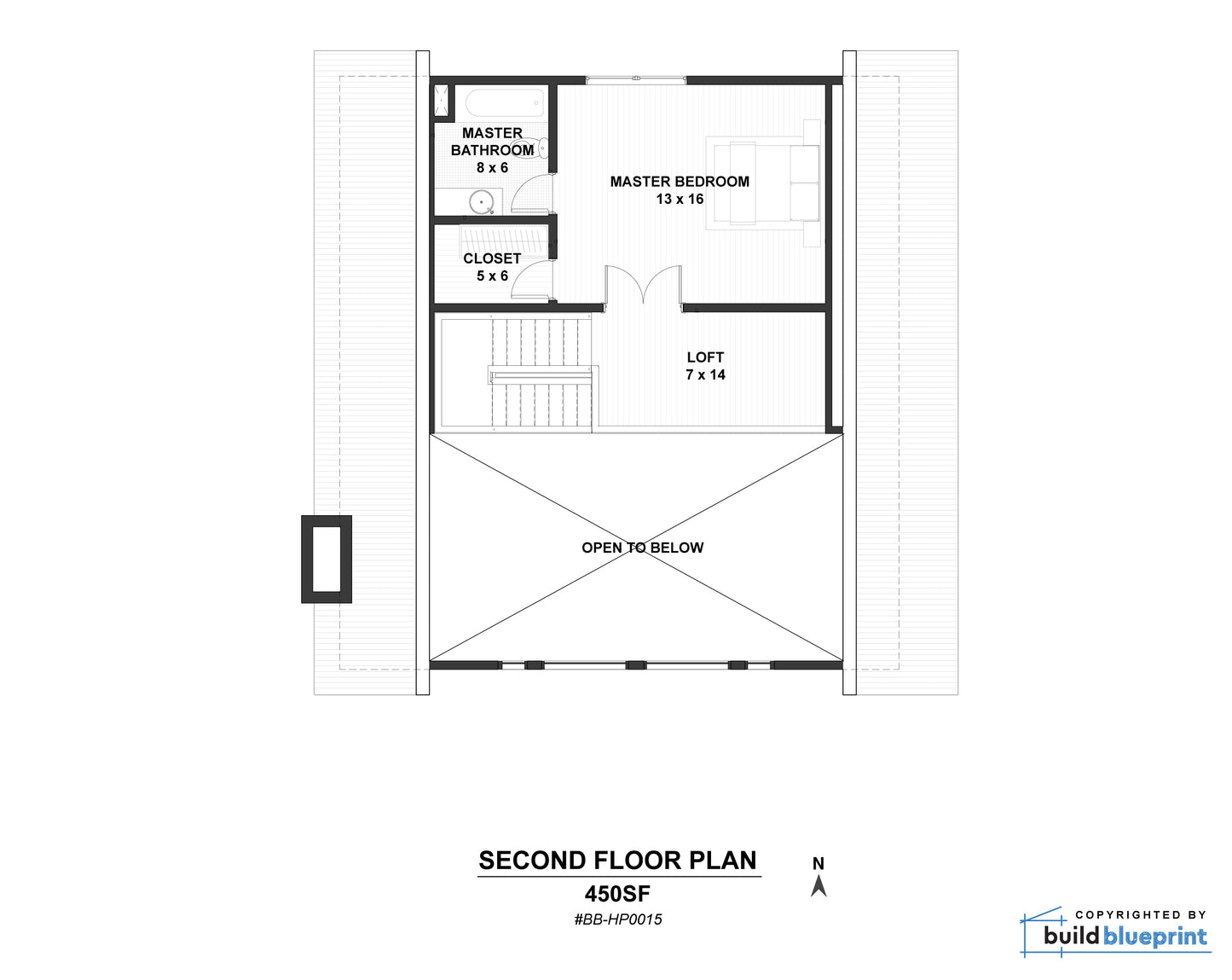
3 Bedrooms / 2 Bathrooms |
Concrete Footing |
Roof Load: 95 PSF |
Ceiling Height: 9'-0" |
Est. Materials Cost: $70,000* |
Complete architectural plans of a lovely 2-story, 3 Bedroom and 2 Bathroom Cabin with loft, suitable to be built on any plot of land. This is the perfect inexpensive getaway cottage, complete with a large patio, high ceilings, large windows for natural light, and recreational loft space. Foundation with crawl space.
The plans include Materials List, Floor Plan, Elevations, Roof Plan, Electrical Plan, Foundation/Roofing Details, and Door/Window Schedule, fully dimensioned and annotated. The total heated interior is 1,675SF, with 9' high ceiling. Due to variation in different States and local building departments, these plans are not intended for immediate permitting, but can be adjusted by your builder or designer if needed.
Plan is available in both Imperial and Metric units.
Plans are copyrighted by Build Blueprint, and intended for personal builds only.
Instant Digital Download
Instant Digital Download
You will receive the download link to the full plan immediately after your purchase. Link never expires so you will always have access to download if needed.
Drawing Scale
Drawing Scale
All of our plans are drawn to standard scale (i.e. 1/4" = 1") as per most building and permit requirements.













Complete Plan Set
All plans include: materials list, floor plan, elevations, sections, foundation and roofing plan, electrical plan, plumbing fixture locations, construction details, door and window schedule, and more.