Build Blueprint
20' x 30' Walden Cabin Architectural Plans
20' x 30' Walden Cabin Architectural Plans
Couldn't load pickup availability
820 SF (20'W x 30'L x 22'-6"H) |
2 Bedrooms / 1 Bathroom |
Concrete Pier or Slab |
Wind Load: 115 PSF |
Ceiling Height: 8'-0" |
Est. Materials Cost: $60,000* |
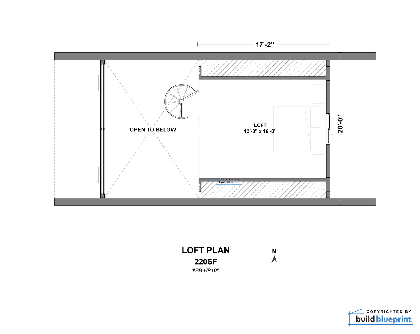
This is the complete architectural plan set (19 sheets) to build a 20x30 modern Nordic style cabin. The plan offers both slab and pier foundation options, suitable to be built on any plot of land. This cabin is complete with front and rear deck, double height ceiling in the living area, a large loft, large windows for natural light, and stacked washer/dryer. The interior space is designed to comfortably sleep a family of 2-3 people. Great for short term Air BNB rentals or off-grid cabin projects!
The plans include 19 sheets: Materials List, Floor Plans, Elevations, Foundation Plan, Floor Framing, Roof Framing Plan, Electrical Plan, Plumbing Plan, Section Details, Construction Details, and Door/Window Schedule, fully dimensioned and annotated. The total heated interior is 820SF, excluding the exterior decks. Plans are designed per US standards.
Size: 20'x30'
Total Area: 820 SF
Bedrooms: 2 (including loft)
Bathrooms: 1
Foundation: Concrete Slab or Piers
Plans are copyrighted by Build Blueprint, and intended for personal builds only.
Instant Digital Download
Instant Digital Download
You will receive the download link to the full plan immediately after your purchase. Link never expires so you will always have access to download if needed.
Drawing Scale
Drawing Scale
All of our plans are drawn to standard scale (i.e. 1/4" = 1") as per most building and permit requirements.












Complete Plan Set
All plans include: materials list, floor plan, elevations, sections, foundation and roofing plan, electrical plan, plumbing fixture locations, construction details, door and window schedule, and more.